Beautiful Home on Colorado's Premier Private Airpark
Description: |
|
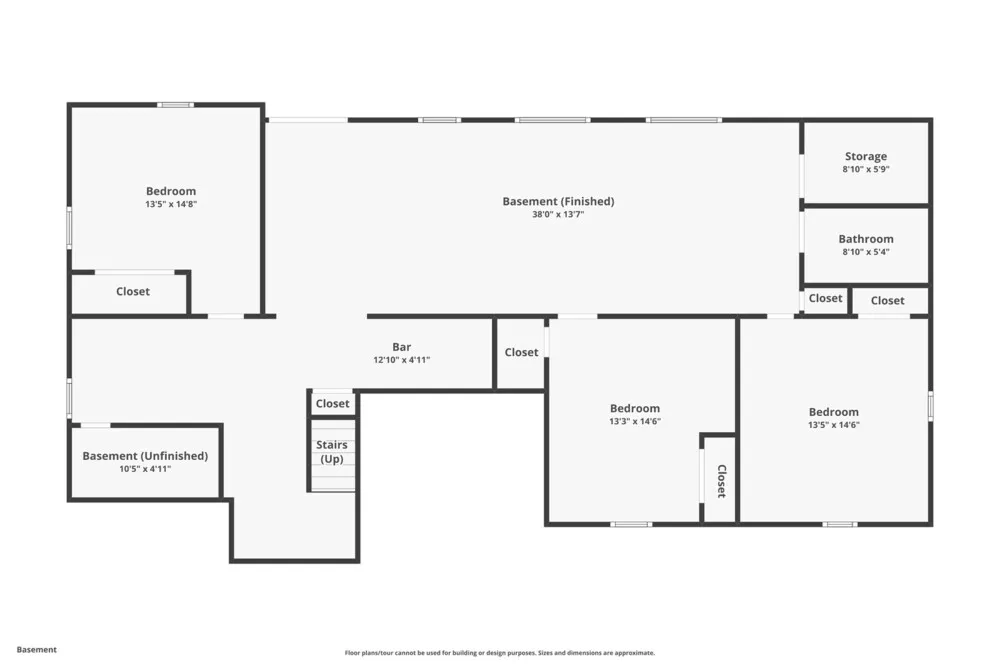
| Bring all your toys and enjoy life! This lovely home with a 2050 sq ft hangar is located on over two acres at Colorado's premier private airpark and has been almost completely renovated over the last two years. New features: practically maintenance free exterior stucco, hail resistant roof, gorgeous wood flooring on the entire main level, carpet in basement, beautiful bathrooms, windows, front door, interior doors, fresh paint, on demand water heater, concrete in garage and hangar, evaporative cooler. Light and bright, the living room, with its vaulted ceiling and fireplace, is perfect for entertaining. The Front Range is highlighted through an abundance of windows and from the West facing deck. The large kitchen offers granite counters and a moveable island. Relax in the large primary bedroom with en suite bath, walk-in closet, and those mountain views. Two secondary bedrooms, a full bath, a half bath, and laundry nook are also on the main floor. The garden level basement features West views, a wet bar, more bedrooms, a full bath, the utility room, and a storage closet. The mature landscaping boasts trees, shrubs, grass, automatic watering, a flagstone patio in front, and an RV parking spot with 50Amp power. The attached garage is oversized at 528 sq ft. This home is located right on the runway, so you can watch air traffic, and has direct taxiway access. With a 2050 sq ft hangar, you have great storage for aircraft, vehicles and other toys. The hangar is heated and fully insulated, has electricity and gas, and doors that open to 10 feet. Parkland Estates (7CO0) offers two runways, with pilot operated lighting on the 4200' East/West runway. Also, VASI, a segmented circle with windsock, and a fuel farm. Erie is a fast growing community with a charming downtown and offers many community activities. Just two miles West of I-25, it's less than 30 minutes to Boulder and about 40 minutes to downtown Denver. | |
Members profile: |
|
| Advertised by: | mwiller (click here to see full profile) |
| Email: | Email Advertiser |
Ad Details |
|
| Property is | For Sale |
| Garage Spaces (put 0 if this does not apply) | 10.00 |
| Price: | $1,600,000 USD |
| Seller and Buyer FEE Negotiations | Yes (The Seller is willing to negotiate with the Buyer an Amount to Cover the Buyers Fees or other Concessions. This is not the listing agent offering to pay the buyers agent a commission. This is that the Seller is willing to give the Buyer a Monetary Concession that the Buyer can use to pay their Agent, if the Buyer chooses to use the monetary concession for that purpose. This website is not affiliated with NAR or any MLS in the USA.) |
| Garage Sq. Ft. | 528 |
| Garage A/C & Heat System | No A/C or Heat |
| Garage Buildings | Both Attached and Detached |
| Motor Court | No |
| Workshop | No |
| Car Lifts | No |
| RV Parking | Electrical Hookups, Outside, Yes |
...and then there is the House |
|
| Bedrooms | 6 |
| Bathrooms | 4 |
| House Sq. Ft. | 3488 |
| Jacuzzi Hot Tub | No |
| Swimming Pool | No |
| Wine Cellar | No |
| Tennis Court | No |
| Basketball Court | No |
For Sale at Auction |
|
| Auction Sale? | No |
Unique Sale Issues |
|
| Type of Sale | Real Estate Agency Sale |
Website |
|
| Website | https://capturecoloradohomes.gofullframe.com/bt/4764_Beverly_Lane.html |
| Virtual Tour | https://www.zillow.com/view-imx/df04994b-8452-4bee-85c7-3937bfef490... |
Location |
|
| View on map | |
| Address | 4764 Beverly Lane |
| City | Erie |
| State | CO |
| Postal Code | 80516 |
| Country | USA |
Call Me! |
|
| Phone | (303) 332-1745 |
| Ad id: | 96145117 |
| Views: | 12663 |
